XL
Nybygget sommerhus med havudsigt på Bornholm
REFERENCEFOTOS
SITUATIONSPLAN
STUEPLAN
FIRE VÆRELSER, 2 TOILET/BAD, KØKKENALRUM, ENTRÉ & BRYGGERS
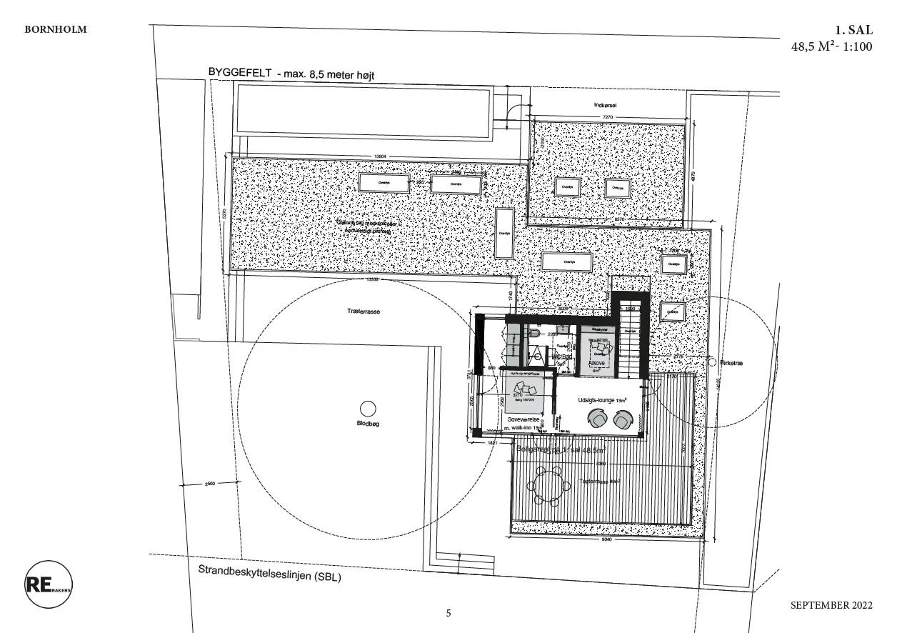
FØRSTESALSPLAN
1 VÆRELSER, 1 TOILET/BAD, ALKOVE, UDSIGTSLOUNGE & TAGTERRASSE
Hvad.
Skitseprojekt til nybygget sommerhus med havudsigt til familie med tre børn
Kundens behov.
Familievenligt sommerbolig med den rette udnyttelse af grund og udsyn. Ønske om skabe at familiested til dem selv og deres familie samt venner nu og i fremtiden.
Løsning.
Sommerhus bygget i let konstruktion og med træ og metal på facaderne. Et moderne og klassisk udtryk tilpasset grunden, lyset og udsigten - og ikke mindst med alle kundes behov indfriet. Kunden forventer sommerhuset bygget i 2023…
Årstal.
2022
SNIT ZOOM
FACADER SYD & ØST
FACADER NORD & VEST
SNIT
SNIT
INSPIRATION
INSPIRATION

